Leave a Message

Thank you for your message. We will be in touch with you shortly.

2810 E Imperial Hwy

2810 E Imperial Hwy, Lynwood, CA 90262

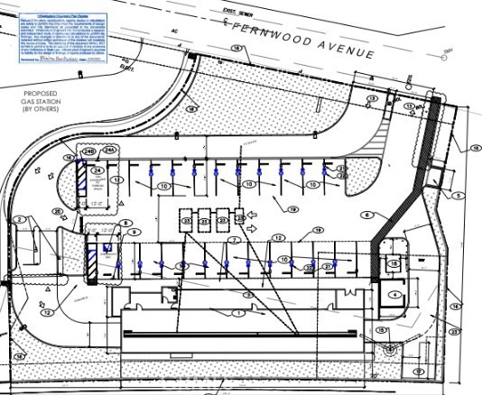
We are pleased to offer the sale of The Lynwood Carwash Express located at 2810 E Imperial Hwy, Lynwood, Ca 90262 The sale includes the 4,760 Sq Ft new construction express car wash on a 37,356 Sq Ft lot. This 100% occupied single tenant absolute NNN lease provides a 5.5% Cap Rate with a 20 year lease and (3) 10 year option periods providing stable cash flow for years to come. There are rental increases of 10% every 5 years built into the lease with 0 landlord responsibility. The property is positioned on the corner of Imperial Hwy and Fernwood with major access and visibility to the 105 Fwy and the Long Beach Blvd Metro station making this an ideal location for business visibility. Can also be purchased as a fee simple with the business licensing and approved construction plans, or can be purchased as a raw land development deal. There is another commercial car wash for sale from the same company at 1801 Long Beach Blvd making this an incredible opportunity to purchase as a portfolio or car washes.

Features & Amenities

Interior

Laundry Room None

Exterior

Stories 1
Water Source Public
Lot Features 0-1 Unit/Acre, Corner Lot, Landscaped, Near Public Transit

Area & Lot

Status For Sale
LIVING SPACE 4,760 Sq.Ft.
TOTAL AREA 4,760 Sq.Ft.
LOT SIZE 0.43 Acres
MLS® ID SB25172268
Type Commercial

Financial

SALES PRICE $6,500,000
Zoning M3

Work With Guillermo

Your home is your sanctuary. Letting go of that sanctuary can be a traumatic process. Finding a new haven can be just as daunting. Guillermo understands and his goal is to find your perfect new home that will not only suit your budget, but also give you immediate peace and protection the moment you walk through the door.

Let's Connect