Leave a Message

Thank you for your message. We will be in touch with you shortly.

1801 Long Beach

1801 Long Beach, Long Beach, CA 90806

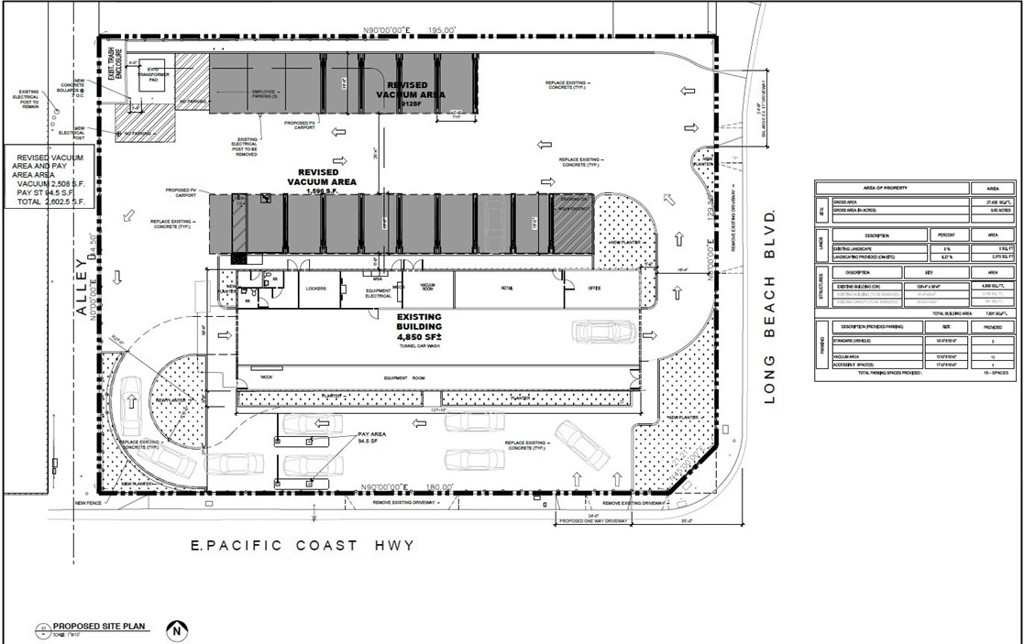
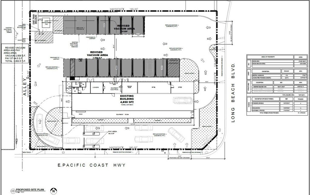
We are pleased to present this once in a lifetime opportunity to purchase an automated Car Wash portfolio. There are currently two Car Wash locations for sale individually or as a portfolio in Long Beach and Lynwood. Both properties are fully entitled with approved plans and permits to develop an express automated car wash. The properties can be sold as fee simple real estate with business and plans or will be sold as a NNN leaseback generating over a $25,000/month for a passive buyer. General Terms of the NNN Leaseback would be a 20 year Absolute NNN Lease with 10% increases every 5 years and (2) 10 year option periods to extend the lease. There is also an option to purchase this property as a land development opportunity and build 100+ unit multi family project (buyer to verify with city). This Long Beach Car Wash will feature a proposed 4,850 sq ft automated carwash building on a 28,091 sq ft corner lot. There are a proposed 15 vacuum sites, and more parking and office space for employees as well. The strategic location adjacent to the the Metro Blue line stop on a major intersection of PCH & Long Beach provides endless options for investors, owners, and developers alike in an area massively poised for growth.

Features & Amenities

Interior

Laundry Room None

Exterior

Stories 1
Water Source Public
Lot Features 0-1 Unit/Acre, Corner Lot, Level, Near Public Transit, Paved

Area & Lot

Status For Sale
LIVING SPACE 7,226 Sq.Ft.
TOTAL AREA 7,226 Sq.Ft.
LOT SIZE 0.65 Acres
MLS® ID SB26000865
Type Commercial
Year Built 1958

Financial

SALES PRICE $5,000,000

Work With Guillermo

Your home is your sanctuary. Letting go of that sanctuary can be a traumatic process. Finding a new haven can be just as daunting. Guillermo understands and his goal is to find your perfect new home that will not only suit your budget, but also give you immediate peace and protection the moment you walk through the door.

Let's Connect